Descrizione
Piazzetta E924 A-H è la stufa a legna provvista di focolare ermetico, con prelievo dell’aria comburente dall’esterno, ed in Aluker®, materiale ceramico che migliora la combustione e la diffusione del calore.
La stufa E924 A-H riesce a raggiungere una potenza massima di 7,2 KW e possiede lo scarico fumi di serie superiore.
Caratteristiche generali:
- Riscaldamento: convezione naturale
- Rivestimento / Piano superiore: maiolica / maiolica
- Monoblocco: ermetico in acciaio
- Focolare: Aluker®
- Deflettore fumi / Braciere: Aluker® - Skamolex / ghisa
- Porta / Maniglia: acciaio con vetro ceramico resistente a 750°C / acciaio e silicone
- Scarico fumi di serie posizione: superiore
- Cassetto cenere estraibile: sì
- Pulizia vetro: flusso d'aria continuo
- Basamento stufa: rotante
- Aria primaria e secondaria preriscaldata: regolabile
- Aria terziaria predeterminata: preriscaldata
- Installazione: centrostanza - parete - angolo
- Colori disponibili: ardesia, bianco, grigio cerato, giallo acceso, rosso lava, nero opaco
Optional (non inclusi):
- Kit accumulo calore HSS
- Kit aria comburente per basamento stufa rotante (per installazione a centrostanza o a parete con condotto per il prelievo dell'aria esterna a pavimento)
- Tubo flessibile Ø 7,5 cm per aria comburente / conduzione aria calda
- Aspiracenere
Dati tecnici:
- Modello: E924 A-H
- Tipo: SL300-03
- Volume riscaldabile (min - max) m3: 120 - 210
- Potenza nominale max kW: 7,2
- Rendimento termico %: 85,1
- Consumo nominale kg/h: 1,9
- Scarico fumi di serie Ø cm: 15
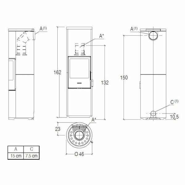
- Dimensioni L x P x H cm: 46 x 46 x 162
- Peso stufa kg: 163
- Peso con HSS kg: 277
Dati energetici e certificazioni:
- Classe energetica: A+
- Certificazione ambientale: 5 stelle
Conto termico:
Zona A | Zona B | Zona C | Zona D | Zona E | Zona F |
476 |
675 |
873 |
1111 |
1349 |
1428 |
Prodotti simili a Piazzetta E924 A-H stufa a legna 7,2 kW scarico superiore base rotante


Piazzetta LUGANO MC 90/44 stufa caminetto a legna 12 kW
Prezzo scontato€0,00


Piazzetta LUGANO MC 85/55 BL stufa caminetto a legna 11 kW
Prezzo scontato€0,00


Piazzetta LUGANO MC 80/64 BL stufa caminetto a legna 11 kW
Prezzo scontato€0,00


Piazzetta LUGANO MC 70/51 stufa caminetto a legna 11 kW
Prezzo scontato€0,00


Piazzetta LUGANO MC 65/60 stufa caminetto a legna 11 kW
Prezzo scontato€0,00


Piazzetta LUGANO MC 133/52 BL stufa caminetto a legna 14 kW
Prezzo scontato€0,00


Piazzetta LUGANO MC 120/48 stufa caminetto a legna 14 kW
Prezzo scontato€0,00


Piazzetta LUGANO MC 105/48 BL stufa caminetto a legna 12 kW
Prezzo scontato€0,00


Piazzetta DAVOS MC 90/44 stufa caminetto a legna 12 kW
Prezzo scontato€0,00


Piazzetta DAVOS MC 85/55 BL stufa caminetto a legna 11 kW
Prezzo scontato€0,00


Piazzetta DAVOS MC 80/64 BL stufa caminetto a legna 11 kW
Prezzo scontato€0,00


Piazzetta DAVOS MC 70/51 stufa caminetto a legna 11 kW
Prezzo scontato€0,00


Piazzetta DAVOS MC 65/60 stufa caminetto a legna 11 kW
Prezzo scontato€0,00


Piazzetta DAVOS MC 133/52 BL stufa caminetto a legna 14 kW
Prezzo scontato€0,00


Piazzetta DAVOS MC 120/48 stufa caminetto a legna 14 kW
Prezzo scontato€0,00


Piazzetta DAVOS MC 105/48 BL stufa caminetto a legna 12 kW
Prezzo scontato€0,00


Piazzetta BERNA stufa caminetto a pellet 15 kW
Prezzo scontato€0,00


Piazzetta BERNA stufa caminetto a pellet 11 kW
Prezzo scontato€0,00


Piazzetta BERNA MC 90/44 stufa caminetto a legna 12 kW
Prezzo scontato€0,00


Piazzetta BERNA MC 85/55 BL stufa caminetto a legna 11 kW
Prezzo scontato€0,00


Piazzetta BERNA MC 80/64 BL stufa caminetto a legna 11 kW
Prezzo scontato€0,00


Piazzetta BERNA MC 70/51 stufa caminetto a legna 11 kW
Prezzo scontato€0,00


Piazzetta BERNA MC 65/60 stufa caminetto a legna 11 kW
Prezzo scontato€0,00


Piazzetta BERNA MC 133/52 BL stufa caminetto a legna 14 kW
Prezzo scontato€0,00


Piazzetta BERNA MC 120/48 stufa caminetto a legna 14 kW
Prezzo scontato€0,00


Piazzetta BERNA MC 105/48 BL stufa caminetto a legna 12 kW
Prezzo scontato€0,00


Piazzetta THELMA stufa a legna 9 kW
Prezzo scontato€0,00


Piazzetta ROUND-M stufa a legna 7,9 kW
Prezzo scontato€0,00


Piazzetta ROUND-M BCS stufa a legna 7,8 kW
Prezzo scontato€0,00


Piazzetta ROUND-H stufa a legna 7,9 kW
Prezzo scontato€0,00


Piazzetta ROUND-H BCS stufa a legna 7,8 kW
Prezzo scontato€0,00


Piazzetta ROUND stufa a legna 7,9 kW
Prezzo scontato€0,00


Piazzetta ROUND BCS stufa a legna 7,8 kW
Prezzo scontato€0,00


Piazzetta QUBE 4 stufa a legna 9 kW
Prezzo scontato€0,00


Piazzetta QUBE 3 stufa a legna 9 kW
Prezzo scontato€0,00


Piazzetta QUBE 2 stufa a legna 9 kW
Prezzo scontato€0,00


Piazzetta QUBE 1 stufa a legna 9 kW
Prezzo scontato€0,00


Piazzetta E929 T stufa a legna 7,9 kW
Prezzo scontato€0,00


Piazzetta E929 T BCS stufa a legna 7,8 kW
Prezzo scontato€0,00


Piazzetta E929 M-H stufa a legna 7,9 kW
Prezzo scontato€0,00


Piazzetta E929 M-H BCS stufa a legna 7,8 kW
Prezzo scontato€0,00


Piazzetta E929 M stufa a legna 7,9 kW
Prezzo scontato€0,00


Piazzetta E929 M BCS stufa a legna 7,8 kW
Prezzo scontato€0,00


Piazzetta E929 D-H stufa a legna 7,9 kW
Prezzo scontato€0,00


Piazzetta E929 D-H BCS stufa a legna 7,8 kW
Prezzo scontato€0,00


Piazzetta E929 D stufa a legna 7,9 kW
Prezzo scontato€0,00


Piazzetta E929 D BCS stufa a legna 7,8 kW
Prezzo scontato€0,00


Piazzetta E929 C-H stufa a legna 7,9 kW con bocchetta frontale
Prezzo scontato€0,00


Piazzetta E929 C-H stufa a legna 7,9 kW
Prezzo scontato€0,00