Descrizione
Piazzetta E929 D-H è la stufa a legna ermetica caratterizzata dal focolare in Aluker®, il quale migliora la combustione e la diffusione del calore, e rivestita in Maiolica con grandi superfici radianti.
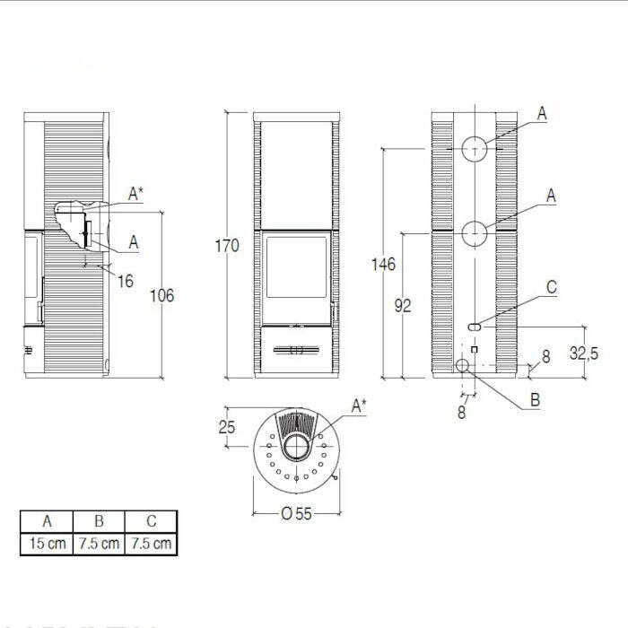
La stufa E929 D-H riesce a raggiungere una potenza massima di 7,9 KW e possiede lo scarico fumi di serie superiore o posteriore.
Caratteristiche generali:
- Riscaldamento: convezione naturale
- Ventilazione frontale: bocchetta orientabile
- Aria calda canalizzabile: sì
- Ermetica: prelievo aria comburente dall'esterno
- Rivestimento / Piano superiore: maiolica / maiolica
- Monoblocco: ermetico in acciaio
- Focolare: Aluker®
- Deflettore fumi / Braciere: Aluker® - Skamolex / ghisa
- Porta / Maniglia: acciaio con vetro ceramico resistente a 750°C / acciaio e silicone
- Scarico fumi di serie posizione: superiore o posteriore (N.B.: scarico posteriore non compatibile con kit accumulo)
- Cassetto cenere estraibile: sì
- Pulizia vetro: flusso d'aria continuo
- Aria primaria e secondaria preriscaldata: regolabile
- Aria terziaria predeterminata: preriscaldata
- Installazione: parete - angolo
- Colori disponibili: ardesia, bianco, giallo acceso, grigio cerato, nero opaco, rosso lava
Optional (non inclusi):
- Multifuoco System® Singolo
- Multifuoco System Plus Singolo
- Kit accumulo calore HSS
- Kit regolazione aria calda convettiva
- Kit paralegna
- Tubo flessibile Ø 7,5 cm per aria comburente / conduzione aria calda
- Aspiracenere
Dati tecnici:
- Modello: E929 D-H
- Tipo: SL310-04
- Volume riscaldabile (min - max) m3: 135 - 230
- Potenza nominale max kW: 7,9
- Rendimento termico nominale %: 85,7
- Consumo nominale kg/h: 2,2
- Scarico fumi di serie Ø cm: 15
- Dimensioni L x P x H cm: 55 x 55 x 170
- Peso stufa kg: 194
- Peso stufa con HSS kg: 360
Dati energetici e certificazioni:
- Classe energetica: A+
- Certificazione ambientale: 4 stelle
Conto termico:
Zona A | Zona B | Zona C | Zona D | Zona E | Zona F |
499 |
706 |
914 |
1163 |
1412 |
1496 |
Prodotti simili a Piazzetta E929 D-H stufa a legna 7,9 kW


Piazzetta LUGANO MC 90/44 stufa caminetto a legna 12 kW
Prezzo scontato€0,00


Piazzetta LUGANO MC 85/55 BL stufa caminetto a legna 11 kW
Prezzo scontato€0,00


Piazzetta LUGANO MC 80/64 BL stufa caminetto a legna 11 kW
Prezzo scontato€0,00


Piazzetta LUGANO MC 70/51 stufa caminetto a legna 11 kW
Prezzo scontato€0,00


Piazzetta LUGANO MC 65/60 stufa caminetto a legna 11 kW
Prezzo scontato€0,00


Piazzetta LUGANO MC 133/52 BL stufa caminetto a legna 14 kW
Prezzo scontato€0,00


Piazzetta LUGANO MC 120/48 stufa caminetto a legna 14 kW
Prezzo scontato€0,00


Piazzetta LUGANO MC 105/48 BL stufa caminetto a legna 12 kW
Prezzo scontato€0,00


Piazzetta DAVOS MC 90/44 stufa caminetto a legna 12 kW
Prezzo scontato€0,00


Piazzetta DAVOS MC 85/55 BL stufa caminetto a legna 11 kW
Prezzo scontato€0,00


Piazzetta DAVOS MC 80/64 BL stufa caminetto a legna 11 kW
Prezzo scontato€0,00


Piazzetta DAVOS MC 70/51 stufa caminetto a legna 11 kW
Prezzo scontato€0,00


Piazzetta DAVOS MC 65/60 stufa caminetto a legna 11 kW
Prezzo scontato€0,00


Piazzetta DAVOS MC 133/52 BL stufa caminetto a legna 14 kW
Prezzo scontato€0,00


Piazzetta DAVOS MC 120/48 stufa caminetto a legna 14 kW
Prezzo scontato€0,00


Piazzetta DAVOS MC 105/48 BL stufa caminetto a legna 12 kW
Prezzo scontato€0,00


Piazzetta BERNA stufa caminetto a pellet 15 kW
Prezzo scontato€0,00


Piazzetta BERNA stufa caminetto a pellet 11 kW
Prezzo scontato€0,00


Piazzetta BERNA MC 90/44 stufa caminetto a legna 12 kW
Prezzo scontato€0,00


Piazzetta BERNA MC 85/55 BL stufa caminetto a legna 11 kW
Prezzo scontato€0,00


Piazzetta BERNA MC 80/64 BL stufa caminetto a legna 11 kW
Prezzo scontato€0,00


Piazzetta BERNA MC 70/51 stufa caminetto a legna 11 kW
Prezzo scontato€0,00


Piazzetta BERNA MC 65/60 stufa caminetto a legna 11 kW
Prezzo scontato€0,00


Piazzetta BERNA MC 133/52 BL stufa caminetto a legna 14 kW
Prezzo scontato€0,00


Piazzetta BERNA MC 120/48 stufa caminetto a legna 14 kW
Prezzo scontato€0,00


Piazzetta BERNA MC 105/48 BL stufa caminetto a legna 12 kW
Prezzo scontato€0,00


Piazzetta THELMA stufa a legna 9 kW
Prezzo scontato€0,00


Piazzetta ROUND-M stufa a legna 7,9 kW
Prezzo scontato€0,00


Piazzetta ROUND-M BCS stufa a legna 7,8 kW
Prezzo scontato€0,00


Piazzetta ROUND-H stufa a legna 7,9 kW
Prezzo scontato€0,00


Piazzetta ROUND-H BCS stufa a legna 7,8 kW
Prezzo scontato€0,00


Piazzetta ROUND stufa a legna 7,9 kW
Prezzo scontato€0,00


Piazzetta ROUND BCS stufa a legna 7,8 kW
Prezzo scontato€0,00


Piazzetta QUBE 4 stufa a legna 9 kW
Prezzo scontato€0,00


Piazzetta QUBE 3 stufa a legna 9 kW
Prezzo scontato€0,00


Piazzetta QUBE 2 stufa a legna 9 kW
Prezzo scontato€0,00


Piazzetta QUBE 1 stufa a legna 9 kW
Prezzo scontato€0,00


Piazzetta E929 T stufa a legna 7,9 kW
Prezzo scontato€0,00


Piazzetta E929 T BCS stufa a legna 7,8 kW
Prezzo scontato€0,00


Piazzetta E929 M-H stufa a legna 7,9 kW
Prezzo scontato€0,00


Piazzetta E929 M-H BCS stufa a legna 7,8 kW
Prezzo scontato€0,00


Piazzetta E929 M stufa a legna 7,9 kW
Prezzo scontato€0,00


Piazzetta E929 M BCS stufa a legna 7,8 kW
Prezzo scontato€0,00


Piazzetta E929 D-H BCS stufa a legna 7,8 kW
Prezzo scontato€0,00


Piazzetta E929 D stufa a legna 7,9 kW
Prezzo scontato€0,00


Piazzetta E929 D BCS stufa a legna 7,8 kW
Prezzo scontato€0,00


Piazzetta E929 C-H stufa a legna 7,9 kW con bocchetta frontale
Prezzo scontato€0,00


Piazzetta E929 C-H stufa a legna 7,9 kW
Prezzo scontato€0,00