Descrizione
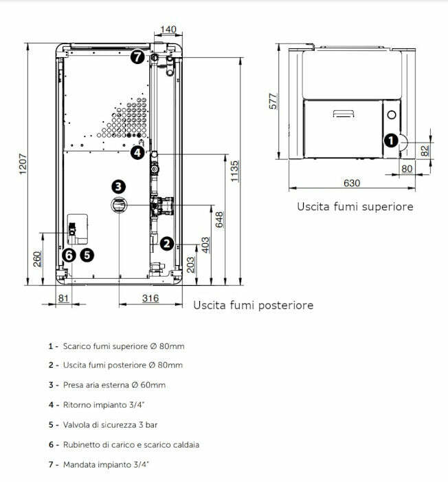
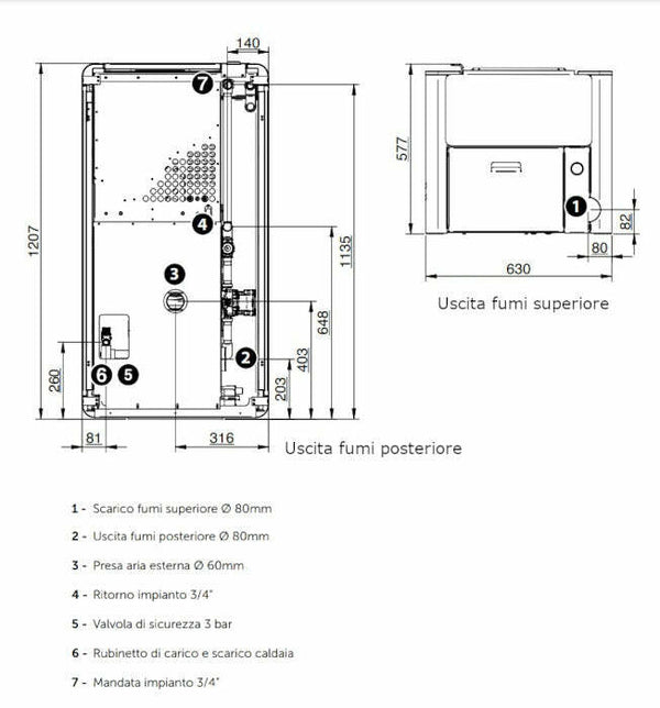
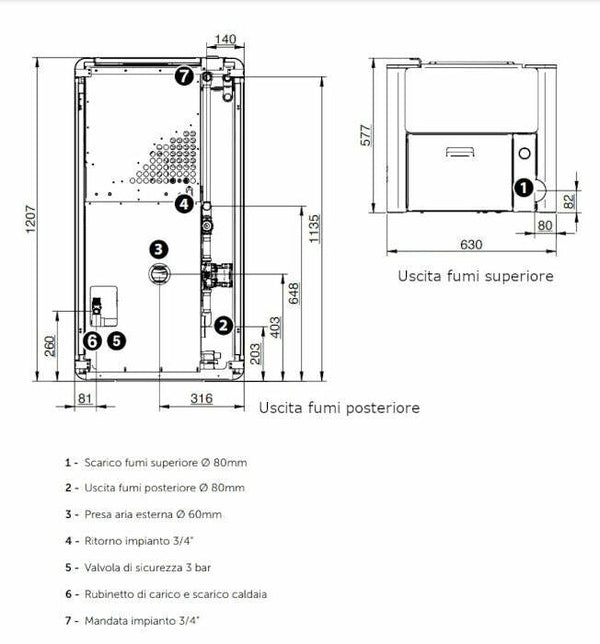
CS Thermos Venexia 18 è una termostufa a pellet/biomassa, con bruciatore autopulente, predisposizione presa d'aria comburente dall'esterno e scarico fumi di serie posteriore e superiore.
Ottime performance in fase di combustione ed un’elevata resa all’acqua: raggiunge una potenza termica nominale di 17 KW ed all'acqua di 15,3 KW.
Caratteristiche generali:
- Riscaldamento: per irraggiamento
- Ideale per garantire il riscaldamento di tutta la casa e per la produzione di acqua calda per il proprio sistema idrico sanitario
- 5 menu di combustibili diversi già programmati
- Combustibile pellet/biomassa:
- Pellet di legno A1
- Pellet di legno A2
- Pellet di legno B
- Agripellet
- Nocciolino d'oliva (solo dimensioni > 4 mm e tasso umidità < 12%)
- Gusci di vario genere (solo dimensioni > 4 mm e tasso umidità < 12%)
- Bruciatore multicombustibile autopulente
- Struttura in metallo
- Doppia porta colorata: fa da cornice al vetro del focolare e mette in risalto la fiamma, rendendo invisibili maniglia e altri dettagli tecnici, con un effetto di elegante sobrietà
- Sicurezze meccaniche: valvola di scarico a 3 bar, termostato caldaia, pressostato aria, pressostato acqua
- Sicurezze elettriche: sensori induttivi che verificano costantemente la posizione della rotazione dei motori; sonda fumi
- Sicurezza anti-ritorno di fiamma
- Sistema anti colpo
- Presa d'aria dall'esterno Ø 60 mm
- Mandata e ritorno impianto: 3/4"
- Livelli di potenza: 6
- Scarico fumi: posteriore e superiore
- Chiusura ermetica del coperchio carico combustibile
- N.B. È consigliata l’installazione di un separatore idraulico e/o di un puffer sull’impianto per ottimizzare il funzionamento del sistema
- Nel circuito di ritorno deve essere installato un sistema di trattamento chimico-fisico dell’acqua dell’impianto (es: defangatore con magnete) per salvaguardare i componenti come il circolatore elettronico di mandata impianto
- Colori rivestimento disponibili: bronzo, perla, nero lucido, grigio
In dotazione:
- Valvola di miscelazione (anticondensa) con controllo termostatico della temperatura di ritorno impianto
- Manometro lettura pressione impianto
- Valvola anticondensa, circolatore elettronico impianto, sonda sanitaria
- Barra a "L" per pulizia cenere
- Collarino scarico fumi superiore
- Kit sicurezze idrauliche: vaso di espansione, valvola di scarico a 3 bar, sfiato automatico, scarico impianto
- Sonda bollitore
Accessori (non inclusi):
- Kit "Rialto Smart Home" gestione da rete Wi-Fi tramite App RIALTO Active, permette l'accensione, lo spegnimento e il controllo della temperatura.
Comprende: modem White Box, termostato, dispositivo Ekko - Kit gestione da remoto via GSM o App, permette l’accensione o lo spegnimento della stufa
Dati tecnici:
- Modello: VENEXIA 18
- Classe di efficienza energetica: A++
- Volume riscaldabile m3: 470
- Potenza massima kW: 18,04
- Potenza termica nominale kW: 17
- Potenza termica nominale all'acqua kW: 15,3
- Rendimento termico nominale %: 92,50
- Scarico fumi Ø mm: 80
- Consumo orario (min - max) kg/h: 1,1 - 3,8
- Capacità serbatoio kg: 21
- Autonomia alla minima potenza h: 19
- Dimensioni L x P x H cm: 63 x 58 x 121
- Peso stufa kg: 220
Dati energetici e certificazioni:
- Classe energetica: A++
- Certificazione ambientale: 4 stelle
Conto termico:
Fascia A | Fascia B | Fascia C | Fascia D | Fascia E | Fascia F |
683 |
968 |
1253 |
1595 |
1936 |
2050 |
Prodotti simili a CS Thermos Venexia 18 termostufa a pellet/biomassa


Superior Tanya TH stufa a pellet Thermo 13,9 KW - acqua 12,1 KW
Prezzo scontato€0,00


CS Thermos Venexia 25 termostufa a pellet/biomassa
Prezzo scontato€0,00


CS Thermos Venexia 21 termostufa a pellet/biomassa
Prezzo scontato€0,00


CS Thermos Venexia 15 termostufa a pellet/biomassa
Prezzo scontato€0,00


CS Thermos Thema H2O 21 pietra termostufa a pellet/biomassa
Prezzo scontato€0,00


CS Thermos Thema H2O 21 metallo termostufa a pellet/biomassa
Prezzo scontato€0,00


CS Thermos Thema H2O 21 MDi termostufa a pellet/biomassa
Prezzo scontato€0,00


CS Thermos Thema H2O 16 pietra termostufa a pellet/biomassa
Prezzo scontato€0,00


CS Thermos Thema H2O 16 metallo termostufa a pellet/biomassa
Prezzo scontato€0,00


CS Thermos Thema H2O 16 MDi termostufa a pellet/biomassa
Prezzo scontato€0,00


CS Thermos Roma 25 termostufa a pellet/biomassa
Prezzo scontato€0,00


CS Thermos Roma 21 termostufa a pellet/biomassa
Prezzo scontato€0,00


CS Thermos Roma 18 termostufa a pellet/biomassa
Prezzo scontato€0,00


CS Thermos Roma 15 termostufa a pellet/biomassa
Prezzo scontato€0,00


Cadel Maya 24 termostufa Pellet Hydro metallo
Prezzo scontato€0,00


Cadel Maya 16 termostufa Pellet Hydro metallo
Prezzo scontato€0,00


Cadel Idro River 23 termostufa Pellet Hydro metallo
Prezzo scontato€0,00


Cadel Idro River 23 termostufa Pellet Hydro maiolica
Prezzo scontato€0,00


Cadel Idro River 23 H2O termostufa Pellet Hydro metallo
Prezzo scontato€0,00


Cadel Idro River 23 H2O termostufa Pellet Hydro maiolica
Prezzo scontato€0,00


Cadel Idro River 16 termostufa Pellet Hydro metallo
Prezzo scontato€0,00


Cadel Idro River 16 termostufa Pellet Hydro maiolica
Prezzo scontato€0,00


Cadel Idro Prince 30 termostufa Pellet Hydro
Prezzo scontato€0,00


Cadel Idro Prince 12 termostufa Pellet Hydro metallo
Prezzo scontato€0,00