Descrizione
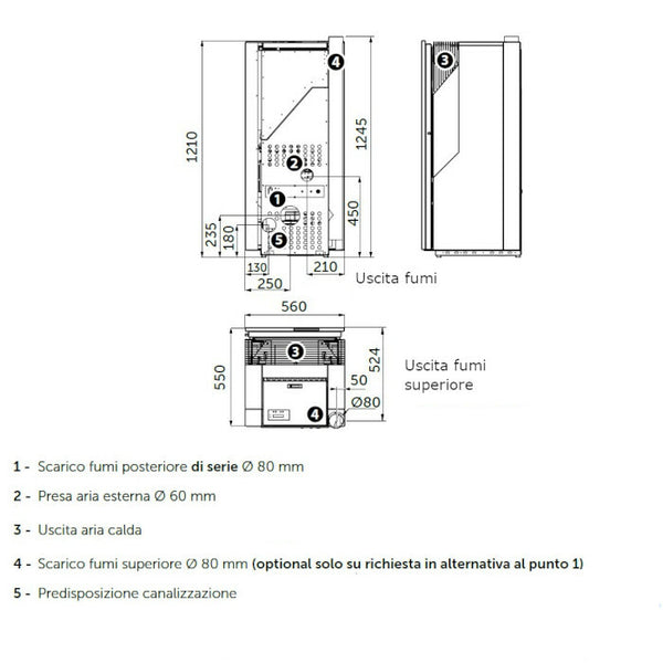
CS Thermos Sirmione 10 è una stufa a pellet/biomassa canalizzabile, con predisposizione presa d'aria comburente dall'esterno e dal design esterno in pietra. Raggiunge una potenza massima di 10,16 KW ed è provvista di scarico fumi di serie posteriore, mentre è opzionale quello superiore.
Caratteristiche generali:
- Riscaldamento: aria diretta con ventilazione forzata
- Se attivato dal centro assistenza tecnica, il ventilatore di riscaldamento rimane spento fino alla seconda potenza compresa, dalla successiva entra in funzione (funzionamento a convezione naturale alle prime 2 potenze)
- 5 menu di combustibili diversi già programmati
- Combustibile pellet/biomassa:
- Pellet di legno A1
- Pellet di legno A2
- Pellet di legno B
- Agripellet
- Nocciolino d'oliva (solo dimensioni > 4 mm e tasso umidità < 12%)
- Gusci di vario genere (solo dimensioni > 4 mm e tasso umidità < 12%)
- Bruciatore multicombustibile autopulente
- Struttura robusta con spessori fino a 4 mm
- Rivestimento in pietra
- Sicurezze meccaniche con termostato a riarmo manuale e pressostato
- Sicurezza anti-ritorno di fiamma mediante gestione doppia coclea
- Sistema anti colpo
- Massima silenziosità
- Presa d'aria dall'esterno Ø 60 mm
- Possibilità di canalizzazione (vedi Accessori)
- Scarico fumi: posteriore
- Programmazione settimanale
- Livelli di potenza: 6
- Cassetto per la cenere
- Facile pulizia degli scambiatori
- In dotazione: una barra a "L" per pulizia cenere
- N.B. Chiusura ermetica e magnetica del serbatoio
- Colori rivestimento disponibili: pietra Platinum White, pietra ollare, pietra rovere, pietra verde Alpi, pietra umbra MDi, pietra nero Azalai MDi
Accessori (non inclusi):
- Kit "Rialto Smart Home" gestione da rete Wi-Fi tramite App RIALTO Active, permette l'accensione, lo spegnimento e il controllo della temperatura.
Comprende: modem White Box, termostato, dispositivo Ekko - Kit gestione da remoto via GSM o App, permette l’accensione o lo spegnimento
della stufa - Termostato ambiente a muro Siemens per la canalizzazione; permette la regolazione dell’aria e della temperatura; modula ma non spegne la ventilazione nella zona canalizzata
- Kit scarico superiore con uscita laterale già installato e comprensivo di:
- 1 “T” raccogli condensa Ø 80 mm e ml 1 Tubo espulsione Ø 80 mm
- 1 Manicotto di collegamento - Kit di canalizzazione con ventilatore dedicato installato completo di: raccordo
di mandata, allacciamenti, cablaggio, ventilatore, riduzione Ø 80-60 mm
Dati tecnici:
- Modello: SIRMIONE 10
- Classe di efficienza energetica: A+
- Volume riscaldabile m3: 80 - 290
- Potenza (min - max) kW: 3 - 10,16
- Rendimento termico nominale %: 93,85
- Consumo (min - max) kg/h: 0,8 - 2,2
- Scarico fumi Ø mm: 80
- Capacità serbatoio kg: 20
- Autonomia alla minima potenza h: 30
- Dimensioni L x P x H cm: 56 x 55 x 121
- Peso stufa kg: 200 (230 in pietra ollare)
Dati energetici e certificazioni:
- Classe energetica: A+
- Certificazione ambientale: 5 stelle
Conto termico:
Fascia A | Fascia B | Fascia C | Fascia D | Fascia E | Fascia F |
559 | 792 |
1025 |
1305 |
1584 |
1678 |
Prodotti simili a CS Thermos Sirmione 10 stufa a pellet/biomassa canalizzabile 10,16 KW


CS Thermos Thema 10 pietra stufa a pellet/biomassa canalizzabile 9,8 KW
Prezzo scontato€0,00


CS Thermos Thema 12 pietra stufa a pellet/biomassa canalizzabile 11,5 KW
Prezzo scontato€0,00


CS Thermos Thema 12 metallo stufa a pellet/biomassa canalizzabile 11,5 KW
Prezzo scontato€0,00


CS Thermos Thema 12 MDi stufa a pellet/biomassa canalizzabile 11,5 KW
Prezzo scontato€0,00


CS Thermos Thema 10 metallo stufa a pellet/biomassa canalizzabile 9,8 KW
Prezzo scontato€0,00


CS Thermos Thema 10 MDi stufa a pellet/biomassa canalizzabile 9,8 KW
Prezzo scontato€0,00


CS Thermos Sirmione 9 stufa a pellet - biomassa 9,2 KW
Prezzo scontato€0,00


CS Thermos Sirmione 9 Stagna stufa stagna a pellet/biomassa 9,2 KW
Prezzo scontato€0,00


CS Thermos Sirmione 12 stufa a pellet/biomassa canalizzabile 11,97 KW
Prezzo scontato€0,00


CS Thermos Scrigno stufa a pellet - biomassa 8,07 KW
Prezzo scontato€0,00


CS Thermos Leire stufa a pellet - biomassa 8,07 KW
Prezzo scontato€0,00


CS Thermos Garda 9 stufa a pellet - biomassa 9,2 KW
Prezzo scontato€0,00


CS Thermos Garda 9 Stagna stufa stagna a pellet/biomassa 9,2 KW
Prezzo scontato€0,00


CS Thermos Garda 9 Ceramic stufa a pellet - biomassa 9,2 KW
Prezzo scontato€0,00


CS Thermos Garda 9 Ceramic Stagna stufa stagna a pellet/biomassa 9,2 KW
Prezzo scontato€0,00


CS Thermos Arianna 12 stufa a pellet/biomassa canalizzabile 11,97 KW
Prezzo scontato€0,00


CS Thermos Arianna 12 Ceramic stufa a pellet/biomassa canalizzabile 11,97 KW
Prezzo scontato€0,00


CS Thermos Arianna 10 stufa a pellet/biomassa canalizzabile 10,16 KW
Prezzo scontato€0,00


CS Thermos Arianna 10 Ceramic stufa a pellet/biomassa canalizzabile 10,16 KW
Prezzo scontato€0,00